FM 200 System


FM-200 (HFC227ea) ระบบดับเพลิงอัตโนมัติด้วยสารสะอาด  ซึ่งได้รับการรับรองมาตรฐาน UL/FM โดยเป็นระบบป้องกันการเกิดเพลิงไหม้แบบชนิดสารสะอาดโดยใช้สารเคมีชนิด HFC-227ea เป็นสารเคมีชนิดที่ไม่ทำความเสียหายต่ออุปกรณ์คอมพิวเตอร์, อิเลคทรอนิกส์ และ ไม่เป็นอันตรายต่อมนุษย์ เหมาะสำหรับติดตั้งในห้องสำคัญ เช่น Server Room, Data Center, UPS Room.
ระบบอัตโนมัติด้วยสารสะอาด (FM-200)

คุณสมบัติ
      FM 200 เป็นสารฮาโลคาร์บอน (Halocarbon Agent) ประกอบด้วย ฟลูออลีน คลอรีน โบรมีน ไอโอดีน พัฒนามาจากก๊าซฮาลอน
     • มีจุดเดือดที่ -16 0C สูตรทางเคมี HF3CHFCF3  ชื่อทางวิทยาศาสตร์  Heptafluropropane รู้จักกันในนามของก๊าซ FM - 200 หรือ HFC-227ea
      ไม่มีสี, ไม่มีกลิ่น, ไม่นำไฟฟ้า, ไม่ทำลายชั้น O-Zone, ไม่เป็นอันตรายต่อสิ่งมีชีวิตและไม่มีสารตกค้าง“Great Lakes Chemical”

ลักษณะการดับเพลิงไหม้      
ตัดกระบวนการเกิดเพลิงไหม้โดยการลดอุณหภูมิและตัดออกซิเจนไม่สามารถติดไฟได้
การออกแบบระบบ        
โดยปริมาตรแล้วก๊าซ FM - 200 จะใช้แค่ 6.25%-10% ของปริมาตรพื้นที่เท่านั้น  เมื่อเปรียบเทียบกับ CO2 และ Inert Gas จำนวนถังจึงน้อยกว่ามาก
 ส่วนประกอบของระบบ
 ชุดควบคุมหลัก
   - แผงควบคุมหลัก
   - แบตเตอร์รี่สำรอง
 อุปกรณ์แจ้งเตือน
   - กระดิ่ง (Bell)
   - ฮอนด์  (Horn)
   - ไฟกระพริบ (Strobe light)
 อุปกรณ์ควบคุมการจ่ายก๊าซ
   - โซลีนอยด์วาล์ว (Solenoid Valve)
   - วาล์วปล่อยฉุกเฉิน (Manual Valve)

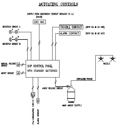
Function System

Powered by MakeWebEasy.com
เว็บไซต์นี้มีการใช้งานคุกกี้ เพื่อเพิ่มประสิทธิภาพและประสบการณ์ที่ดีในการใช้งานเว็บไซต์ของท่าน ท่านสามารถอ่านรายละเอียดเพิ่มเติมได้ที่ นโยบายความเป็นส่วนตัว  และ  นโยบายคุกกี้