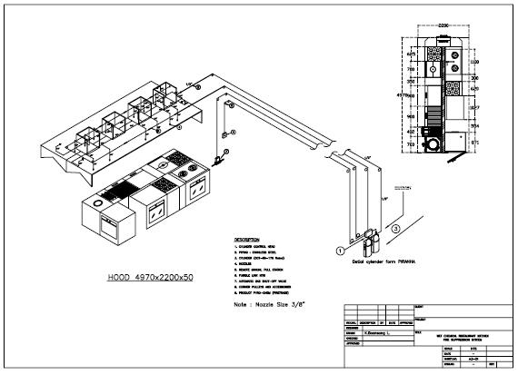
Fire Kitchen System

ระบบดับเพลิงในห้องครัว Wet Chemical  เป็นระบบดับเพลิงอัตโนมัติ เหมาะสำหรับห้องครัว และเตาปรุงอาหาร มีการออกแบบโดยมีน้ำยาเคมีของระบบ Wet Chemical ซึ่งที่มีประสิทธิภาพสูงในการดับไฟที่เกิดเพลิงไหม้บริเวณเตา และไม่เป็นพิษภัยต่อ บุคคลและทรัพย์สิน สามารถทำความสะอาดได้ด้วยน้ำธรรมดา ได้รับการรับรองตาม UL300 เหมาะสำหรับติดตั้งดับเพลิงในห้องครัว,ห้องปรุงอาหาร ในโรงแรม, ภัตตาคาร, ร้านอาหารตามห้างต่างๆ เป็นต้น

Down load PDF >> Click

Powered by MakeWebEasy.com
เว็บไซต์นี้มีการใช้งานคุกกี้ เพื่อเพิ่มประสิทธิภาพและประสบการณ์ที่ดีในการใช้งานเว็บไซต์ของท่าน ท่านสามารถอ่านรายละเอียดเพิ่มเติมได้ที่ นโยบายความเป็นส่วนตัว  และ  นโยบายคุกกี้